Personalizaciones para garantizar que pueda obtener el elevador de mercancías adecuado para las necesidades específicas de su industria.

COLOSO - 6000 Kg

Aunque son ascensores gearless eficientes, construidos para mover cargas pesadas de hasta 6000 kg, cumplen con la norma EN81.20/50.

Recomendamos y ofrecemos diferentes estilos de elevadores de carga según su aplicación deseada y sus requisitos específicos.

¡Equipo robusto que puede equiparse con diferentes tipos de protección!

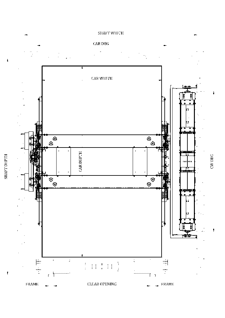
COLOSO

Especificaciones generales

Carga máxima Q = 6000 kg. Tracción 4:1. Velocidad máxima: 0,8 m/s. Foso mínimo: 1900 mm con sistema antideriva. Foso mínimo: 1400 mm sin sistema antideriva. Altura mínima: 3700 mm con cabina de 2240 mm de altura exterior. Diseño compacto para una comodidad total. ¡Una de las alturas mínimas requeridas del mercado!

Sistema antideriva

Sistema antideriva con cuñas mecánicas (Opcional)

Puertas

Elija entre puertas Wittur Pegasus Supra y Meiller Heavy Duty Modelos Meiller Heavy Duty: Apertura lateral de tres paneles TTS/K 31 HD S/K 3 R/L HD CDW = 700 – 2500 mm CDH = 2000 – 4500 mm Apertura central de cuatro paneles TTS/K 28 HD S/K 4 Z HD CDW = 1200 – 3200 mm CDH = 2000 – 4500 mm Apertura central de seis paneles TTS/K 32 HD S/K 6 Z HD CDW = 1800 – 4000 mm CDH = 2000 – 4500 mm

Especificaciones Eléctricas

ZenONE con control Thor para elevadores de trabajo pesado